historia

ZENGA B o m b a r d i e r

2.100m2 budynek wielorodzinny o podwyższonym standardzie / multi-family, superior standard building, Gdańsk, Płocka.

ZENGA Bombardier - elewacja z ulicy / main elevation from the street.
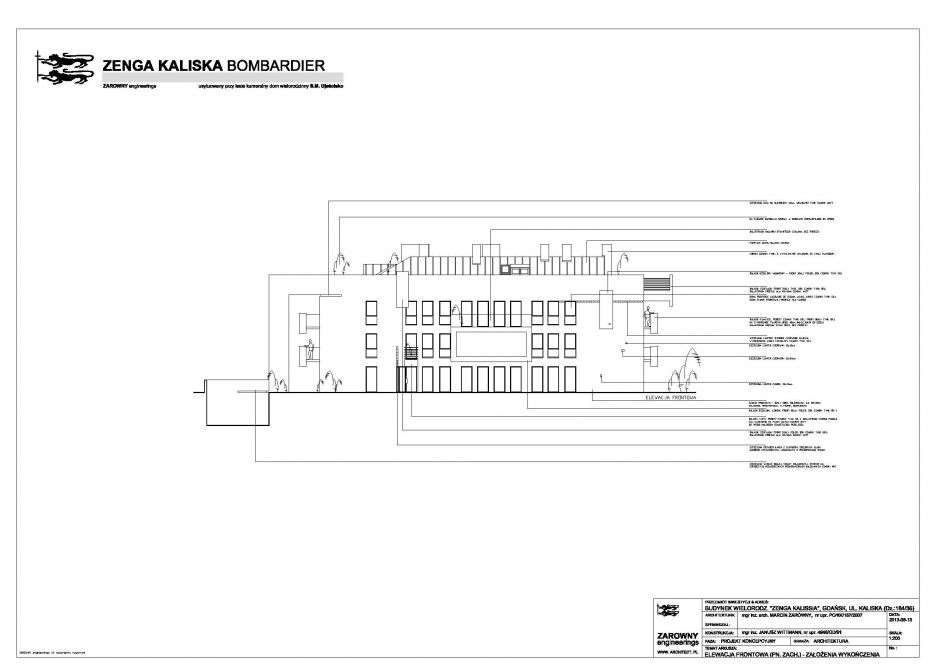
ZENGA Bombardier - elewacja frontowa / frontal elevation.
detal - elewacja od ulicy / detail - main elevation.
widok z ulicy / view from the street.

ZENGA Bombardier - detal gł. elewacji / main elevation details.
detal: balkony nad podejściem / detail: balconies over the entrance approach.
detal - wiszące akwarium / detail - hanging aquarium, glass balcony.

     Geneza     

(...) "Reprezentacyjny budynek wielorodzinny "Zenga Bombardier", powstał w zamierzeniu architektów i inżynierów "ZAROWNY engineerings" jako progresywnie zaprojektowany, nowoczesny i na miarę ograniczonych możliwości inwestora Spółdzielni Mieszkaniowej, jako łączący z pozoru niemożliwą do uzyskania bez wystarczających środków, ekskluzywność i luksusowość..." (...)         OPIS PROJEKTU    

widok z ulicy pd. / view from the street South.
ZENGA Bombardier - detal: balkony szczęka i lufa ze szczeliną / detail: balconies & the slot.
ZENGA Bombardier - elewacja pn. / the north elevation.
ZENGA Bombardier - detal: balkon szczęka / detail: the trademark jaw balcony.
ZENGA Bombardier - detal: świecąca szczelina & balkon / detail: shining slot & trademark balcony.
detal: wejście do budynku / detail: the entrance approach.
ZENGA Bombardier - detal: rama z firmowym balkonem szczęka / detail: the frame & trademark balcony.
ZENGA Bombardier - elewacja pn. / north elevation.
ZENGA Bombardier - detal: szczelina doświetlająca z balkonem / detail: shining slot & the barrel balcony.
ZENGA Bombardier - detal: balkon typu monitor / detail: monitor type balcony.
fragment elewacji fronotwej / the frontal elevation.
detal: tablica z nr. budynku / detail: the building number slab.
fragment elewacji frontowej / frontal elevation details.
ZENGA Bombardier - detal: frontowe balkony / detail: frontal balconies.
ZENGA Bombardier - detal: szczelina ramy frontowej / detail: frontal frames slot.
detal: balkon elewacji czołowej / frontal elevation balcony.
detale elewacja czołowej / frontal elevation details.
detale elewacji fronotwej / frontal elevation details.
ZENGA Bombardier - detal: rama frontowa / detail: frontal frame.
detal: balkon typu akwarium / detail: aquarium type balcony.
detal: balkon elewacji pn. / detail: north elevation balcony.
ZENGA Bombardier - elewacja pd. / south elevation.
ZENGA Bombardier - detal: rama frontowa / front frame.
ZENGA Bombardier - fragment elewacji frontowej /the  front elevation.
detal: balkon frontowy / detail: frontal trademark balcony.
detal: rama frontowa / detail: frontal frame.
detal: balkony frontu / detail: frontal balconies.
detal: balkony elewacji pd. / detail: south elevation balconies.
detal: balkon poludniowy / detail: south balcony.
balkony elewacji frontowej / frontal elevation balconies.
detal: balkony za ramą czołową / detail: balconies behind the frame.
fragment elewacji frontowej / frontal elevation.
detal: doświetl. odpryski pod balkonem / detail: balcony shining gaps.
detal: balkony za ramą frontową / detail: balconies behind the frame.
rama elewacji frontowej / the frontal elevation frame.
detal: podejście / detail: the entrance approach.
detal: świecąca nocą szczelina pod ramą / detail: shining slot under the frame.
fragment elewacji czołowej / frontal elevation expression.
detal: rama czołowa budynku / detail: the frontal frame.
detal: rama frontowa / detail: the frontal frame.
detal: balkony nad wejściem / detail: balconies over the entrance.
detal: balkon korsepondujący z ramą / detail: the balcony & the frame.
detal: balkon typu akwarium / detail: balcony aquarium type.
elewacja frontowa / frontal elevation.
detal: podejście / detail: approaching the entrance.
detal: balkon elewacji fronotwej / detail: the frontal balcony.
fragment elewacji czołowej / frontal elevation.
detal: balkony elewacji frontowej / detail: the frontal balconies.
detal: odpryski świetlne pod balkonem / detail: the lights shining gaps.
detal: rama czołowa / detail: the frontal frame.
detal: balkon nad wjazdem do garażu / detail: balcony over the garrage gate.
elewacja fronotwa / the frontal elevation.
detal elewacji południowej / south elevation details.
detal: balkony za ramą czołową / balconies behind frontal frame.
detal: balkon elewacji północnej / detail: north elevation balcony.
detal: balkon elewacji frontowej /detail: frontal elevation balcony.
detal: rama czołowa / detail: the frontal frame.
elewacja frontowa nocą / frontal elevation by night.
detal: balkony elewacji pd. / detail: south elevation balconies.
detal: akwaria elewacji frontowej / detail: frontal aquarium balconies.
detal elewacji frontowej / frontal elevation detail.
detal: balkon czołowy / detail: frontal jaw type trademark balcony.
detal: balkon czołowy / detail: frontal jaw type trademark balcony.
detal: balkon czołowy / detail: frontal jaw type trademark balcony.
zabudowany balkon frontowy / frontal glass balcony.
detal: frontowy monitor / detail: frontal glass monitor balcony.
detal: balkon elewacji pd. / detail: south elevation balcony.
korespondujący z ramą frontową balkon pn. / north balcony & the frame.
elewacja czołowa / the frontal elevation.
balkon nad wejściem / balcony over the entrance.
fragment elewacji czołowej / frontal elevation details.
elewacja frontowa / frontal elevation.
detal: akwarium elewacji frontowej / detail: frontal elevation aquarium.
detal: akwarium elewacji frontowej / detail: frontal elevation aquarium.
detal elewacji frontowej / frontal elevation details.
detal elewacji frontowej / frontal elevation details.
detal elewacji frontowej / frontal elevation details.
detal elewacji frontowej / frontal elevation details.
balkon za ramą frontową / the balcony behind the frontal frame.
detal: akwarium elewacji frontowej / detail: frontal elevation aquarium.
detal: szczelina i balkon frontowy / details: the slot & the balconies.
detal: balkon elewacji pd. / detail: south elevation balcony.
zjazd do hali garażowej / approaching the garrage entrance.
zjazd do hali garażowej / garrage hall approaching.
balkon nad wejściem i szczelina / the slot & entrance over entrance.
monitor elewacji frontowej / frontal elevation monitor type balcony.
monitor elewacji frontowej / frontal elevation monitor type balcony.
podejście do wejścia / approaching the entrance.
firmowy balkon elewacji czołowej / frontal elevation trademark balcony.
firmowy balkon elewacji czołowej / frontal elevation trademark balcony.
cztery balkony frontowe / four frontal balconies.
detal elewacji frontowej / frontal elevation details.
rama frontowa / the frontal frame.
odpryski doświetlające / lightining frontal gaps.
rama czołowa / the frontal frame.
detal: balkon frontowy / detail: frontal balcony.
detal: akwarium elewacji frontowej / detail: frontal elevation aquarium.
detal: akwarium elewacji frontowej / detail: frontal elevation aquarium.
balkon elewacji pn. / north elevation trademark balcony.
balkon i rama elewacji frontowej / frontal elevation frmae & balcony.
detal: balkon czołowy / detail: frontal balcony.
detal elewacji frontowej /frontal elevation details.
rama ze szczeliną frontu / frontal frame & the slot.
detal elewacji czołowej / frontal elevation details.
detal elewacji czołowej / frontal elevation details.
detal elewacji frontowej /frontal elevation details.
rama ze szczeliną frontu / frontal frame & the slot.
podejście / the entrance approaching.
elewacja czołowa / frontal elevation.
ZENGA Bombardier - arkusz faktur elewacji / elevation drawing.
ZENGA Bombardier - arkusz faktur elewacji / elevation drawing.
ZENGA Bombardier - arkusz faktur elewacji / elevation drawing.
Referencje inwestorskie / The clients recommendation.

Referencje inwestorskie / The clients recommendation.

  • English
polski english
Strona główna
  • architektura   
  • projekty
  • referencje
  • badania naukowe
  • budownictwo    
  • kontakt    
  • Select a track :
  • Cro Magnon Man
  • |
  • The Separation
  • |
  • Lismore
  • |
  • Thin Ice

: nothing at of , which is

  • dźwięk
  • dźwięk
  • Stop
  • volume :
  • Mute
  • Unmute
  • |<---------->|
  • Max
ZAROWNY engineerings, all rights & copyrights reserved